Tipo

Reforma residencial

Localização

Butantã, São Paulo

Área

90m2

Ano

2023

Casa Butantã

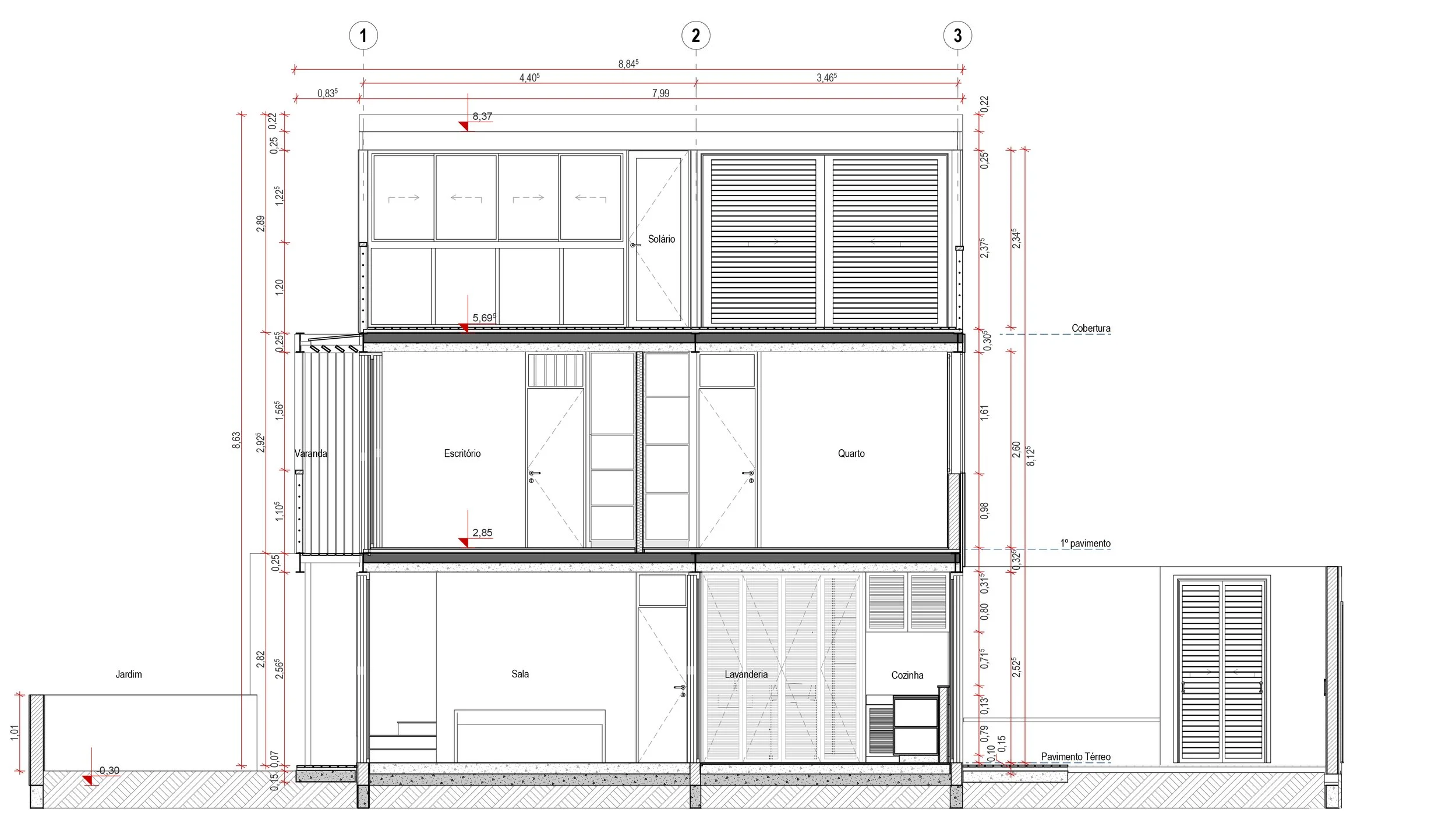
A residência se encontra em um terreno de aproximadamente 5 x 18 metros. Optamos por deixar o terreno livre com portas de correr de vidro que quando todas abertas é possível integrar a casa tanto ao jardim frontal quanto ao jardim dos fundos. A fachada voltada para a rua será mais fechada buscando manter a privacidade da residência, a fachada voltada para o jardim dos fundos terá grandes planos de vidro para aproveitar a vista do terreno.

A casa terá no térreo, cozinha, lavanderia e sala de estar, no primeiro andar dois quartos e um banheiro, além de uma varanda voltando para o jardim dos fundos. Na cobertura teremos um solário.

Por se tratar de um terreno estreito foi proposto construtivamente fazer paredes de alvenaria na divisa com vizinhos e ter vigas de aço que vencem o vão todo do terreno que vão servir de apoio para as lajes.

Arquitetura

Luis Canepa Arquitetos

Anterior
Anterior

Casa Batatais

Próximo
Próximo

Casa Sorocaba